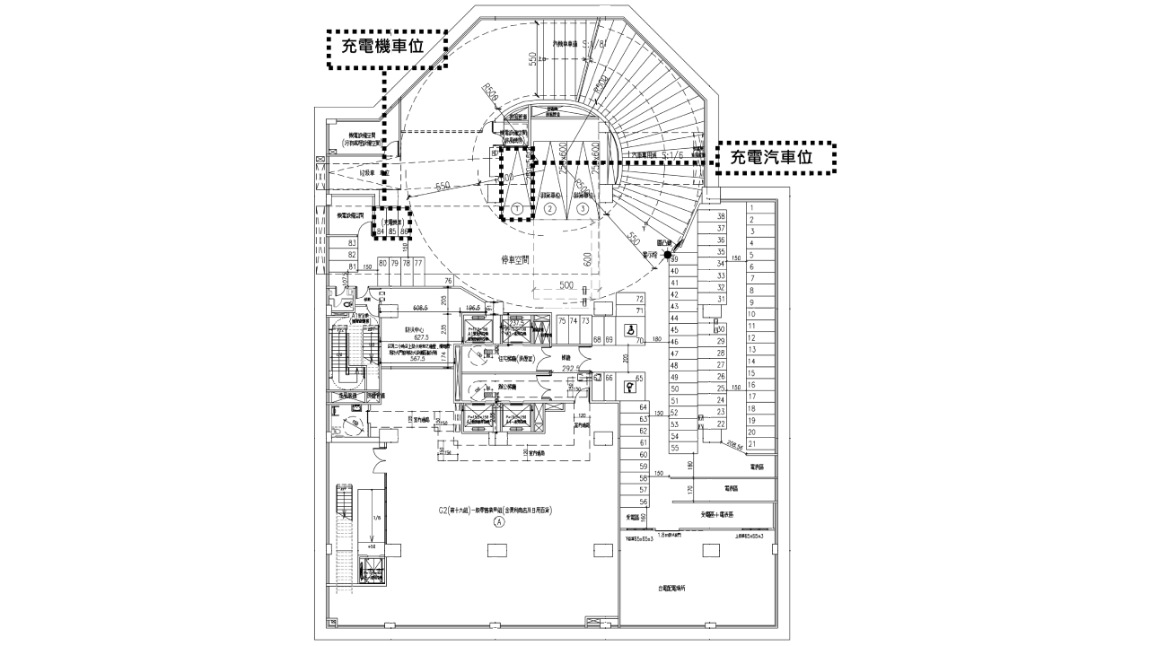
紡織大樓都市更新 動土典禮圓滿完成
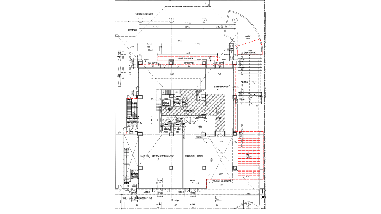
退縮留設5米人行步道
基地臨計畫道路側退縮5公尺人行步道,結合喬木植栽設計,美化都市景觀。
| 項目 | 內容 |
|---|---|
| 實施者 | 丹棠開發股份有限公司 |
| 更新規劃 | 丹棠開發股份有限公司 |
| 建築設計 | 簡俊卿建築師事務所 |
| 鑑價機構 | 宏大不動產估價師聯合事務所、第一太平戴維斯不動產估價師聯合事務所、連邦不動產估價師事務所 |
| 面積(m2) | 2,081.00 |
| 單元範圍 | 臺北市中正區成功段三小段69地號等1筆土地 |
| 使用分區 | 商三特 (原屬住三) |
| 實施方式 | 權利變換 |
| 更新地區 | 自行劃定更新單元 |

| 項目 | 面積(㎡) | 百分比(%) | 備註 |
|---|---|---|---|
| 基準容積 | 4,682.25 | 225.00 | - |
| 中央容積獎勵 | - | ||
| 原建築容積高於基準容積 | 2,374.30 | 50.71 | - |
| 危險建物及結構安全性能評估 | 367.87 | 7.86 | - |
| 綠建築獎勵 | 374.58 | 8.00 | 1 |
| 候選智慧建築證書獎勵 | 280.94 | 6.00 | 2 |
| 時程獎勵 | 327.76 | 7.00 | - |
| 中央獎勵小計 | 3,725.45 | 79.57 | - |
| 地方容積獎勵 | |||
| 建築規劃設計(二) | 46.82 | 1.00 | - |
| 建築規劃設計(三) | 101.15 | 2.16 | 3 |
| 建築規劃設計(四) | 140.47 | 3.00 | - |
| 新技術應用 | 46.82 | 1.00 | - |
| 地方獎勵小計 | 335.26 | 7.16 | - |
| 容積移轉 | |||
| 申請容積獎勵總計 | 4,060.71 | 86.73 | 4 |
| 允建容積 | 8,461.23 | 406.59 | - |
| 實設容積 | 8,442.39 | 405.69 | - |

.jpg)
.jpg)
.jpg)



| 項目 | 金額(億元) | 備註 |
|---|---|---|
| 更新前價值 | 21.72 | - |
| 更新後價值 | 47.21 | 1 |
| 共同負擔或更新成本 | - | |
| 重建費用(A) | 12.72 | 2 |
| 公共設費用(B) | - | - |
| 權利變換費用(C) | 2.64 | - |
| 貸款利息(D) | 1.43 | - |
| 稅捐(E) | - | - |
| 管理費用(F) | 3.25 | 3 |
| 容積移轉費用(G) | - | - |
| 共同負擔或更新成本總計 | 20.04(42.46%) | |
| 實施者分回 | 20.04(42.46%) | |
| 地主分回 | 27.16(57.54%) | |
| 2024-07-10 |
臺北市政府都市發展局建造執照發照
|
| 2024-07-02 |
文資審議會第171次會議報告同意備查
|
| 2024-06-25 |
建造執照審核通知
|
| 2024-02-22 |
事業計畫及權利變換計畫核定
|
| 2023-09-20 | |
| 2023-06-30 |
事業及擬訂權變計畫召開審議會( 報告案)
|
| 2023-05-05 |
事業及擬訂權變計畫召開審議會(通過)
|
| 2022-11-09 |
168專案複審會議
|
| 2022-06-28 |
168專案會議
|
| 2021-01-25 |
168專案會議書面審查
|
| 2020-12-17 | |
| 2020-11-25 | |
| 2020-08-18 |
事業及權利變換計畫報核
|
| 2019-10-04 | |
| 2019-09-23 |
事業概要審議通過
|
| 2014-03-25 |
申請事業概要案
|
| 2014-03-10 |
事業概要公聽會
|
| 2013-09-27 |
更新單元劃定
|