都更顧問

富田

100%協議合建-復興崗站旁優質新大樓

臺北市 完成

在實施者及丹棠機構的努力協調下,取得部分地主同意捐贈土地,開闢計畫道路。以低建蔽率規劃於建物周圍留設開放空間及人行步道供大眾使用。

針對基地立地條件與高低差,以多層次的植栽增加視覺穿透性

利用坡地變化設計開放空間及休憩平台

最新消息

公共利益

低建蔽率規劃,留設大面積人行步道
 以低建蔽率規劃方式退縮建物,於基地四周留設四公尺人行步道空間。

協助開闢兩條都市計畫道路,改善周邊人車動線
分別協助開闢新興路152巷及新興路158巷道路,改善附近交通狀況、打造流暢之人、車行動線。

基本資料

項目 內容
實施者 勝陽建設股份有限公司
更新規劃 財團法人都市更新研究發展基金會
建築設計 江培珩建築師事務所
鑑價機構 宏大不動產估價公司
面積(㎡) 4,320.00
單元範圍 臺北市北投區桃源段二小段251地號等17筆土地
使用分區 住三
實施方式 協議合建
更新地區 自行劃定更新單元

更新單元範圍圖

更新前

本更新單元內建物多為超過60年之土造與磚造建物,環境雜亂與週邊發展差異過大。故依都市更新條例第11條規定自行劃定更新單元,並經臺北市政府於民國2007年1月17日公告劃定,惟當時因基地現況為磚造平房與菜園、竹子等低度利用,都委員會裁定並非都市更新政策所著重之都市更新地區,故限制不得申請更新時程獎勵及更新單元規模獎勵,對於本案影響甚大。


更新前屋況老舊窳陋


環境雜亂與周遭區域差異過大


產權範圍圖

土地使用分區圖

容積

項目 面積(㎡) 百分比(%) 備註
基準容積 9,720.00 225.00 -  
    都市更新容積獎勵 -
       ΔF3更新時程 680.40 7.00 -
          ΔF4-2協助開闢計畫道路之獎勵容積 2,333.12 24.00 1
       ΔF5更新地區規劃設計 2,133.91 21.95 -
          ΔF5-1量體及色彩與環境協調 583.2 6.00 -
          ΔF5-3留設人行步道之獎勵容積 938.35 9.65 2
          ΔF5-5基地規模 612.36 6.30 -
更新獎勵小計 4,860.00 50.00 -
    其他獎勵 -
增設室內公用停車空間獎勵 1,458.00 15.00 3
其他獎勵小計 1,458.00 15.00 -
允建容積 16,038.00 371.25 -
實設容積 16,037.39 371.25 -
備註說明
1.本案擬開闢新興路152巷及158巷,總計1635.04㎡。
2.本案於基地周邊皆退縮四公尺空間做人行步道空間。
3.本案提供共98個室內公用停車格。

規劃

建築師針對基地立地條件與高低差,以低建蔽率規劃(設計建蔽率28.4%)將建築物量體退縮設計,四周留設4公尺寬之人行步道,創造高綠覆率開放空間、休憩平臺,配合坡地變化以多層次的植栽增加視覺穿透性,使建築物能與周遭環境自然調和,讓人在開放空間中體驗更豐富的感官經驗。

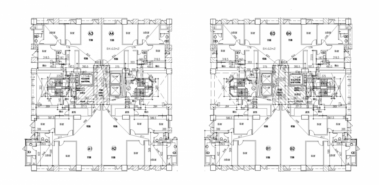
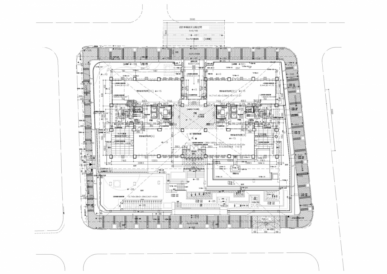
地面層平面圖(核定版)


標準層平面圖(核定版)


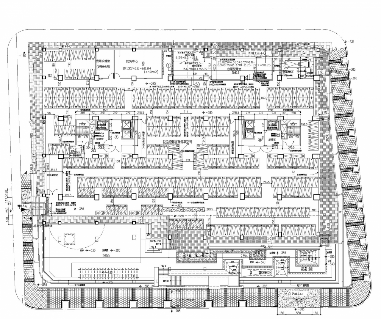
地下一層平面圖(核定版)


景觀平面配置圖


立面圖


剖面圖


更新後建築立面以簡潔的線條與適當的比例分割,搭配深淺色不同的材質變化,創造具現代感的風格意象


利用視覺的高穿透性及大距離退縮建築達到新建物與周邊環境的緩衝效果
 

財務

項目 金額(億元) 備註
更新前價值 7.19 -
更新後價值 26.96 1
共同負擔或更新成本 -
    重建費用(A) 13.91 2
    公共設費用(B) 1.26 -
    都市更新費用(C) 0.05 -
    管理費用(F) 1.23 3
共同負擔或更新成本總計 14.07(37.98%) -
備註說明
1.更新後銷售面積為6847.84坪,車位數266個,更新後價值約為26.96億元。
2.重建費用平均單價為34萬元/坪。
3.人事管理費率3%、營建工程管理費2%、銷售管理費3%。

過程

2012-07-31
完工取得使用執照
2012-07-02
第二次變更事業計畫核定
2011-09-19
第二次變更事業計畫送件
2011-08-29
變更事業計畫核准
2010-07-02
變更事業計畫送件
2009-08-21
建造執照核准
2009-04-02
事業計畫核定
2008-12-08
第二次審議會
2008-12-01
第一次審議會
2008-10-08
2008-09-18
公開展覽30天
2008-07-01
事業計畫送件
2008-06-25
2007-04-26
2007-03-30
事業概要核准
2007-01-17
更新單元公告