都更顧問

大安國中北側案

大安區-四維路

臺北市 審議

更新單元鄰近捷運大安站,丹棠開發協助順天建設透過都市更新事業重建學區老舊住宅,幫助社區重獲新生。

最新消息

公共利益


1、本案建築物北東南側均退縮4公尺以上再行建築及規劃,退讓出更多人行空間,圍塑出較輕切尺度的小型活動休憩場所。
2、本案更新後可提供單純寧適且安全防災之優質商業環境,且配合周邊豐富的景觀及休閒場所與完善的公共設施服務。

基本資料

 
項目 內容
實施者 順天建設股份有限公司
更新規劃 丹棠開發股份有限公司
建築設計 吳非士建築師事務所
鑑價機構  
面積(m2) 1,935.00㎡
單元範圍 大安區大安一小段157地號等12筆土地
使用分區 第三種住宅區
實施方式 權利變換
更新地區 非更新地區,自行劃定更新單元


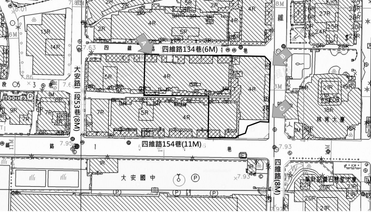
▲基地範圍圖

更新前

本案更新單元位於大安國中北側,本身與周邊現況皆為住宅使用,單元內建築物屋齡皆逾50年,屋況老舊、管線維修不易,未能有效利用土地,發揮其應有之效益,另四維路134巷路邊臨停情形嚴重,缺乏人行步道空間,影響行人安全。


▲更新前地形圖



▲土地使用分區圖



▲產權分布圖




▲更新前現況圖



 

容積

項目 面積(㎡) 百分比(%) 備註
基準容積 4,353.75 225 -  
    中央容積獎勵  
      #5   原建築容積高於基準容積 317.53 7.29  
      #6   建築物結構安全條件 346.27 7.95  
      #10 綠建築 261.23 6.00 1
      #12 無障礙環境設計 130.61 3.00 2
      #13 建築物耐震設計 435.38 10 3
      #14 時程獎勵 152.38 3.50  
中央獎勵小計 1,643.40 37.75  
    地方容積獎勵  
雨水流出抑制設施 43.54 1.00  
留設人行步道或騎樓 486.65 11.18  
建築設計符合審議會歷次會議通案重要原則 130.61 3.00  
30年以上4、5層樓合法建築 84.24 1.93  
地方獎勵小計 745.04 17.11 -
申請容積獎勵總計 2388.44 54.86 4
容積移轉 1741.50 40  
允建容積 8272.13 190.00 -
實設容積 8271.96 190.00 -
備註說明
1.本案擬申請銀級綠建築設計。
2.本案擬取得二級無障礙環境設計。
​3.本案擬取得耐震設計標章。
4.獎勵上限(50%)進行申請,更新獎勵實際申請小計為2,176.88(㎡)。

規劃

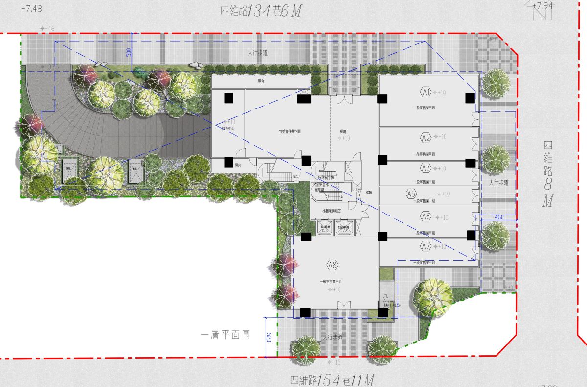
本案更新後預計興建SRC造,地上21層地下4層建物,地上1層有7戶店鋪,2層以上則為住宅使用。
 




▲標準層平面圖



▲地面層平面圖



▲地下一層平面圖



▲景觀平面配置圖



▲建物立面圖



▲建物透視圖

財務

下表數值僅供參考,實際數值應以核定公告版本為準。
項目 金額(億元) 備註
更新前價值 9.31  
更新後價值 68.32 1
共同負擔或更新成本  
重建費用 14.25 2
權利變換費用 1.50  
貸款利息 1.35  
稅捐 0.84  
管理費用 6.26 3
容積移轉費用 5.56  
共同負擔或更新成本總計 29.77(43.58%)  
實施者分回 29.77(43.58%)  
地主分回 38.55(56.42%)  

備註說明:
1.本案更新後銷售面積為3,982.49坪,車位數112個,更新後價值約為68.32億元。
2.重建費用平均單價為28.29萬元/坪。
3.人事管理費率5%、銷售管理費6%及風險管理費率14.03%。

過程

2025-05-21
事業計畫報核
2024-08-03