都更顧問

中興街175巷

中興街窳陋社區變身優質住宅

新北市 審議

丹棠開發協助景裕建設中和中興街老舊社區更新。

公共利益

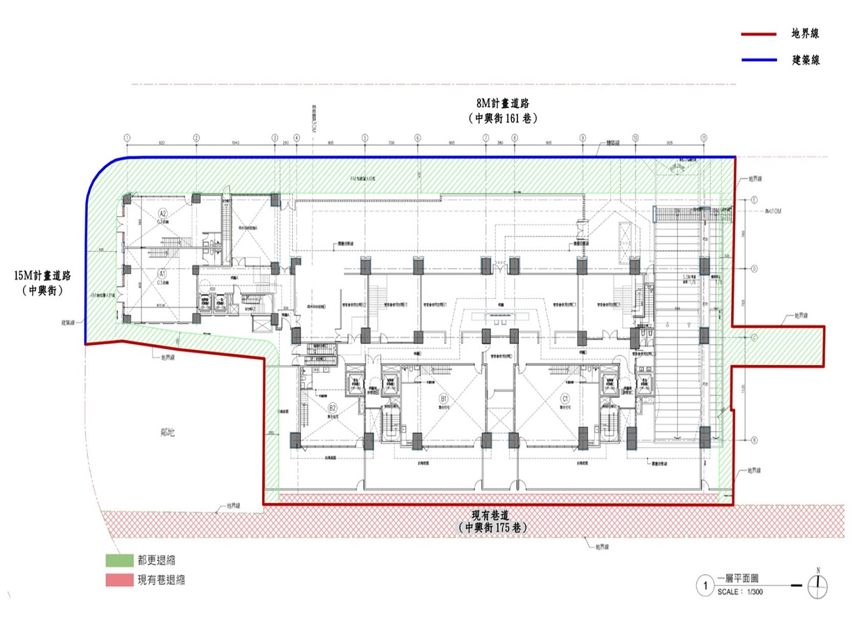
本案整體規劃採低建蔽率設計,以增加綠化面積及開放空間。更新後沿街面留設4公尺無遮簷人行道,並廢止基地內現有巷道(中興街161巷2弄、4弄及6弄),南側中興街175巷更新後則保留通行。整體基地退縮之開放空間配置綠化及人行道系統,提供寬敞且舒適的步行空間。

基本資料

項目 內容
實施者 景裕建設股份有限公司
更新規劃 丹棠開發股份有限公司
建築設計 楊振植建築師事務所
鑑價機構 景瀚不動產估價師聯合事務所、宏大不動產估價師聯合事務所、麗業不動產估價師聯合事務所
面積(m2) 3,606.96
單元範圍 新北市中和區復興段558地號等56筆土地
使用分區 住宅區、道路用地
實施方式 部分協議合建、部分權利變換
更新地區 自行劃定更新單元

更新前

基地內約有45棟建築物,平均屋齡已逾50年,主要為二層樓加強磚造建築物與五層樓老舊公寓,屋齡老舊且建物棟距不足,潛藏公共安全與消防救災問題。
 
範圍內二層樓加強磚造建築物

範圍內五層樓老舊公寓

鄰棟間隔不足,機車違停嚴重,不利消防救災。



更新前地形圖


更新前地籍圖


土地使用分區圖

產權分布圖

容積

項目 面積(㎡) 百分比(%) 備註
基準容積(住宅區) 10,607.28 - -
    都市更新容積獎勵(中央)  
       #6建築物結構安全條件 540.43 5.09 -
       #8協助取得開闢公共設施用地 201.19 1.90 -
       #10綠建築標章之建築設計 636.43 6.00 1
       #13耐震設計或結構安全性能 1,060.72 10.00 2
       #14時程獎勵 742.50 7.00 -
       #15規模獎勵 721.29 6.80 -
中央更新獎勵小計 3,902.56 36.79 -
    新北市都市更新容積獎勵(地方)      
       #2建築基地及建築物規劃設計 1,272.87 12.00 -
       #3捐贈都市更新基金 79.09 0.75 -
       #6三十年以上四、五層樓以上合法建築 49.12 0.46 -
地方更新獎勵小計 1,401.08 13.21 -
    其他獎勵容積      
       容積移轉 2,047.20 19.30 -
       增額容積 1,060.72 10.00  
申請容積獎勵總計 8,411.57 79.30 -
允建容積 19,018.84 179.30 -
實設容積 19,018.50 179.30 -
備註說明
1.本案預計取得綠建築銀級標章。
2.本案預計取得耐震設計標章。

規劃

本案更新後預計興建部分RC部分SRC造,地上1棟十二層及2棟二十四層、地下五層之住商混合複合型大樓。
標準層平面圖


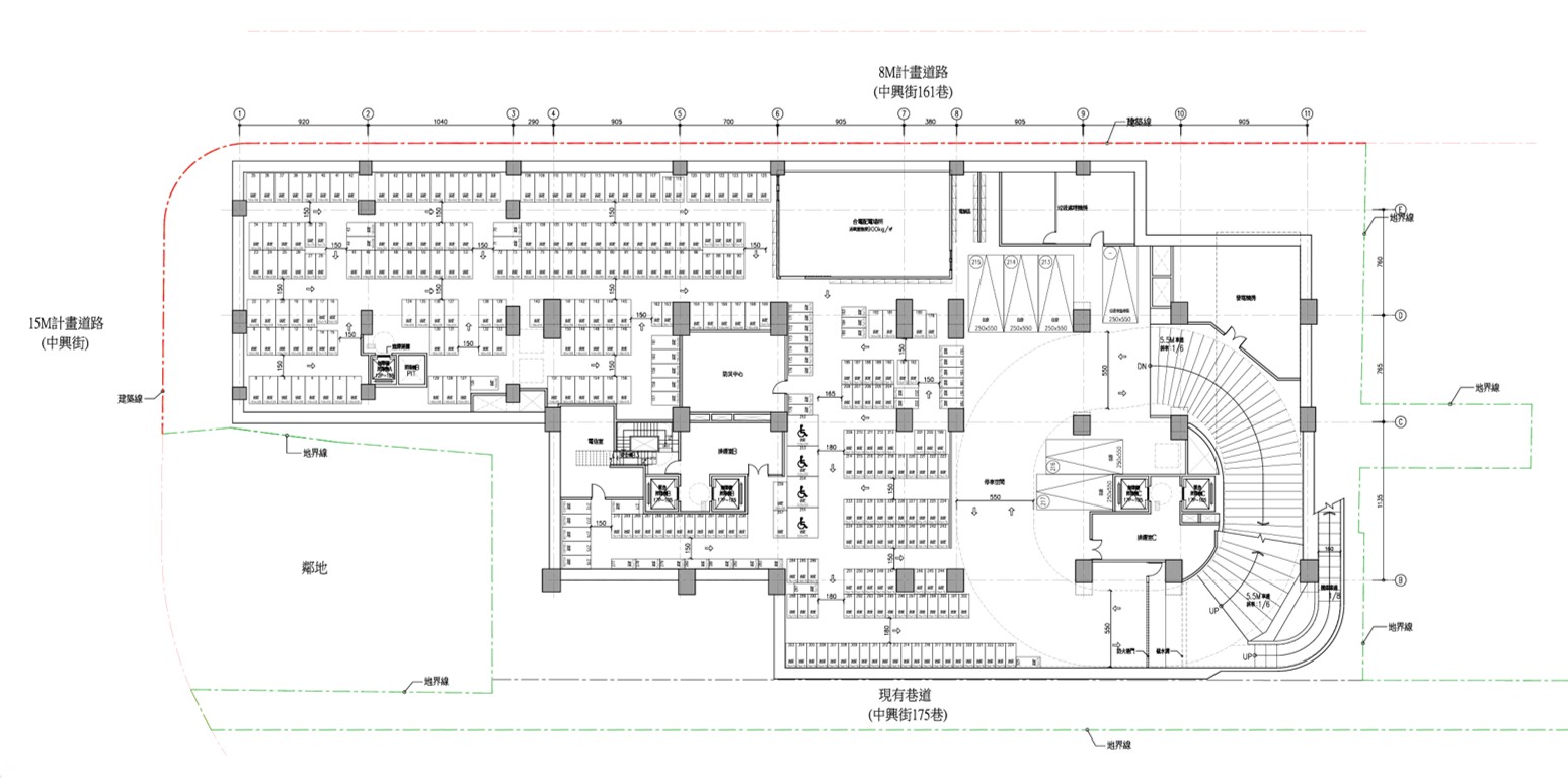
地面層平面圖

地下層平面圖


景觀平面配置圖


建物剖面圖


建物立面圖


建物透視圖

財務

本表數值僅供參考,實際數值應以核定公告版本為準。
項目 金額(億元) 備註
更新前價值 16.79 -
更新後價值 58.85 1
共同負擔或更新成本 -
    工程費用(A) 21.59 2
    申請各項獎勵管維費用(B) 825(萬元)  
    權利變換費用(C) 1.56 -
    貸款利息(D) 1.49 -
    稅捐(E) 6,386(萬元) -
    管理費用(F) 7.39 3
    都市計畫變更(G) 1.20  
    容積移轉費用(H) 1.83  
    共同負擔或更新成本總計 35.78(60.80%) -
實施者分回 35.78(60.80%) -
地主分回 23.07(39.20%) -
備註說明
1.本案領銜估價為景瀚不動產估價師聯合事務所,更新後銷售面積為9,567.34坪,車位數213個,更新後價值約為58.85億元。
2.重建費用平均單價為19.37萬元/坪。
3.人事管理費率5.5%、銷售管理費5.85%、風險管理費 13.50%、信託管理費500萬元。

過程

2024-05-02
事業暨權變計畫第1次都更專案小組
2024-02-29
2024-02-15
公開展覽30日
2023-08-25
事業暨權變計畫申請報核
2023-06-14