桃園春日路更新案核定發布實施
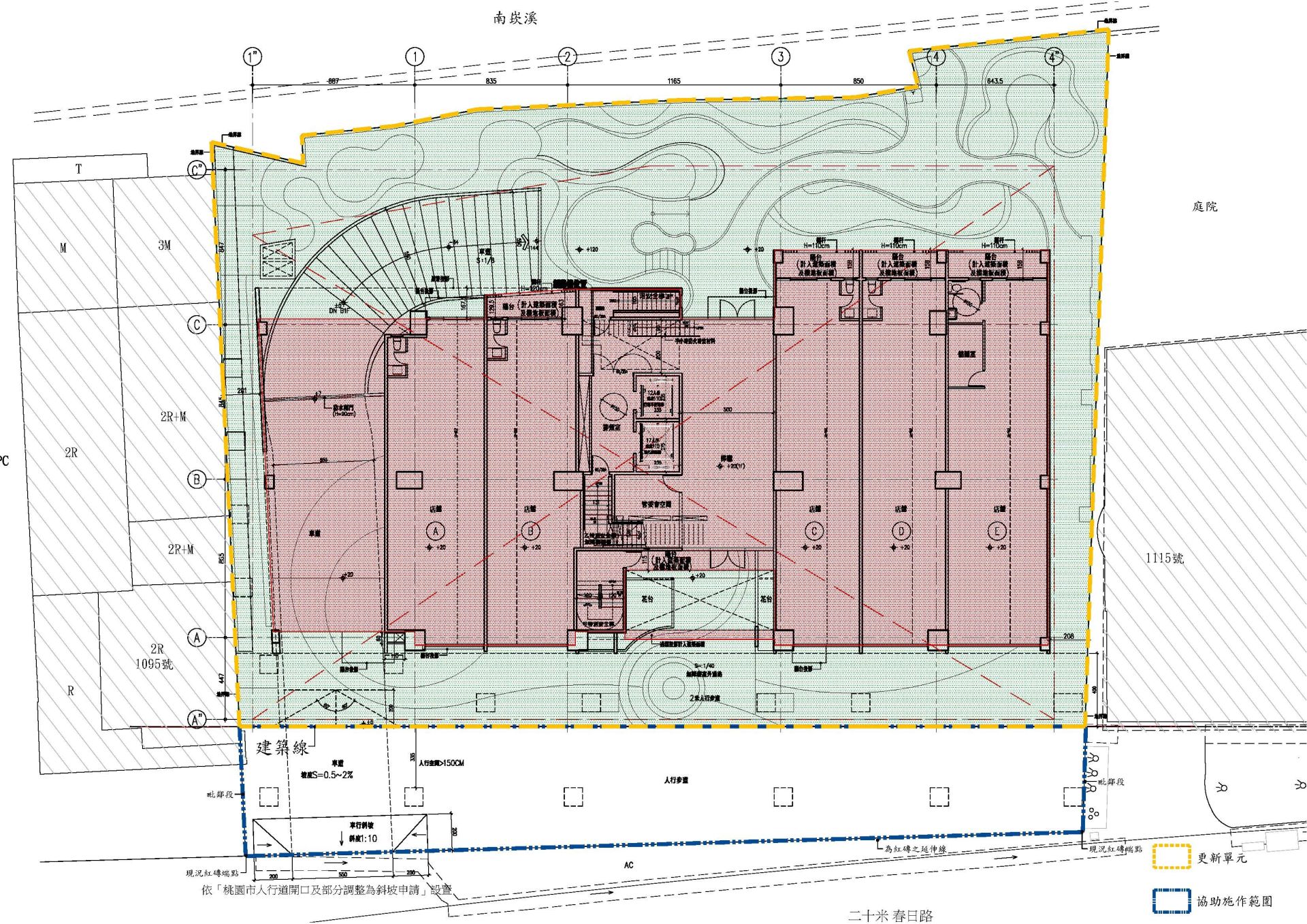
(一)留設春日路人行空間
臨春日路側留設兩米人行步道空間
| 項目 | 內容 |
|---|---|
| 實施者 | 傑丞開發股份有限公司 |
| 更新規劃 | 丹棠城林都市更新股份有限公司 |
| 建築設計 | 謝樹林建築師事務所 |
| 面積(㎡) | 1,638.53 |
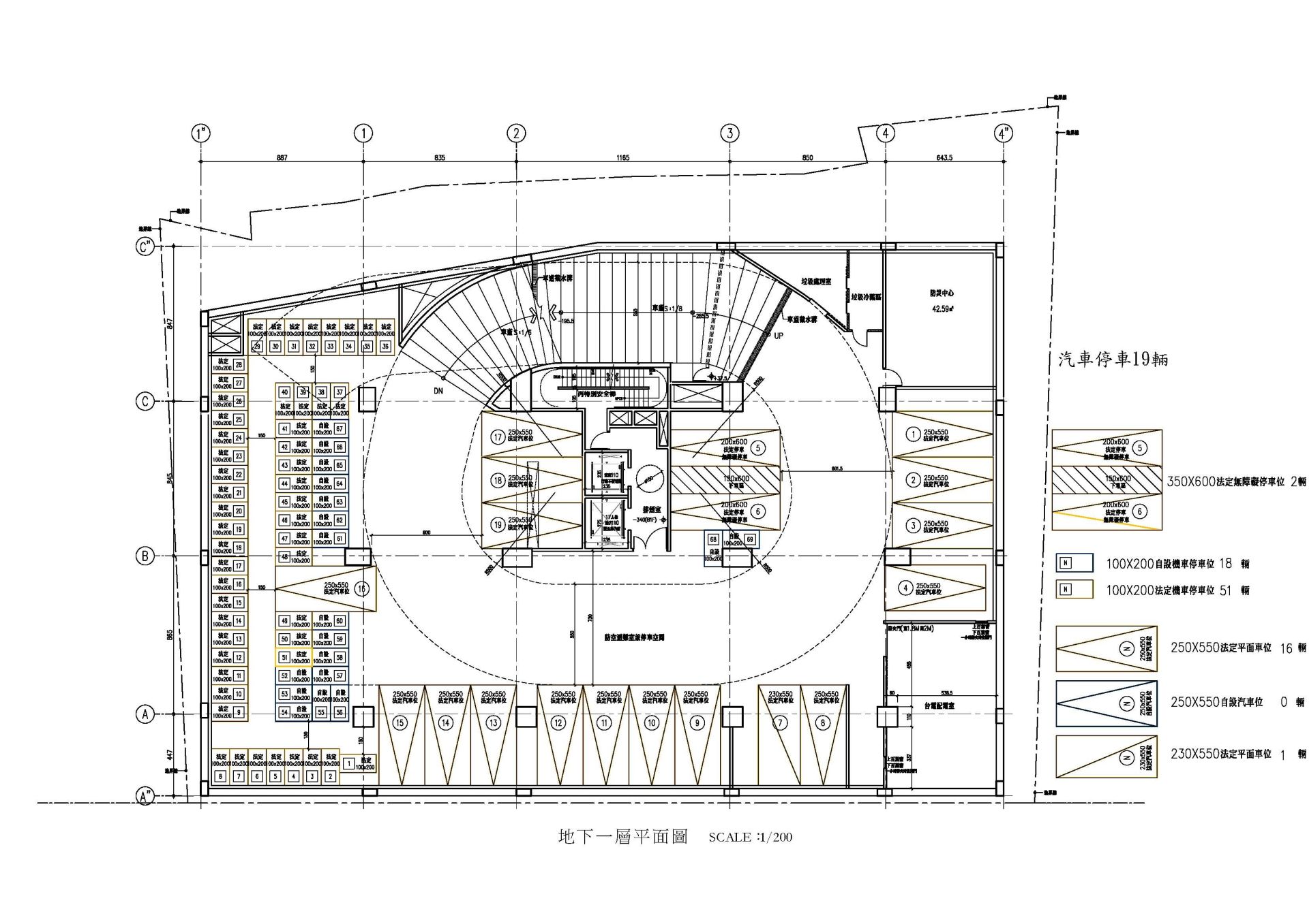
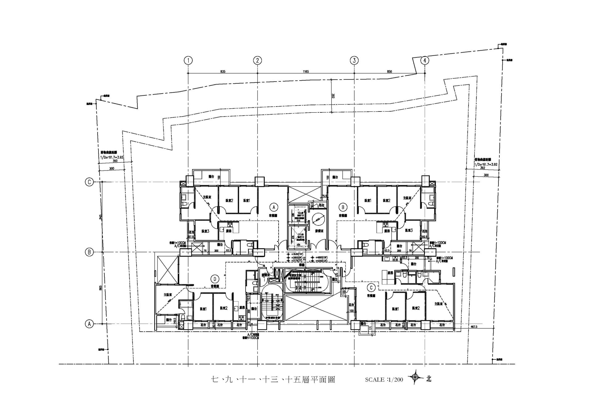
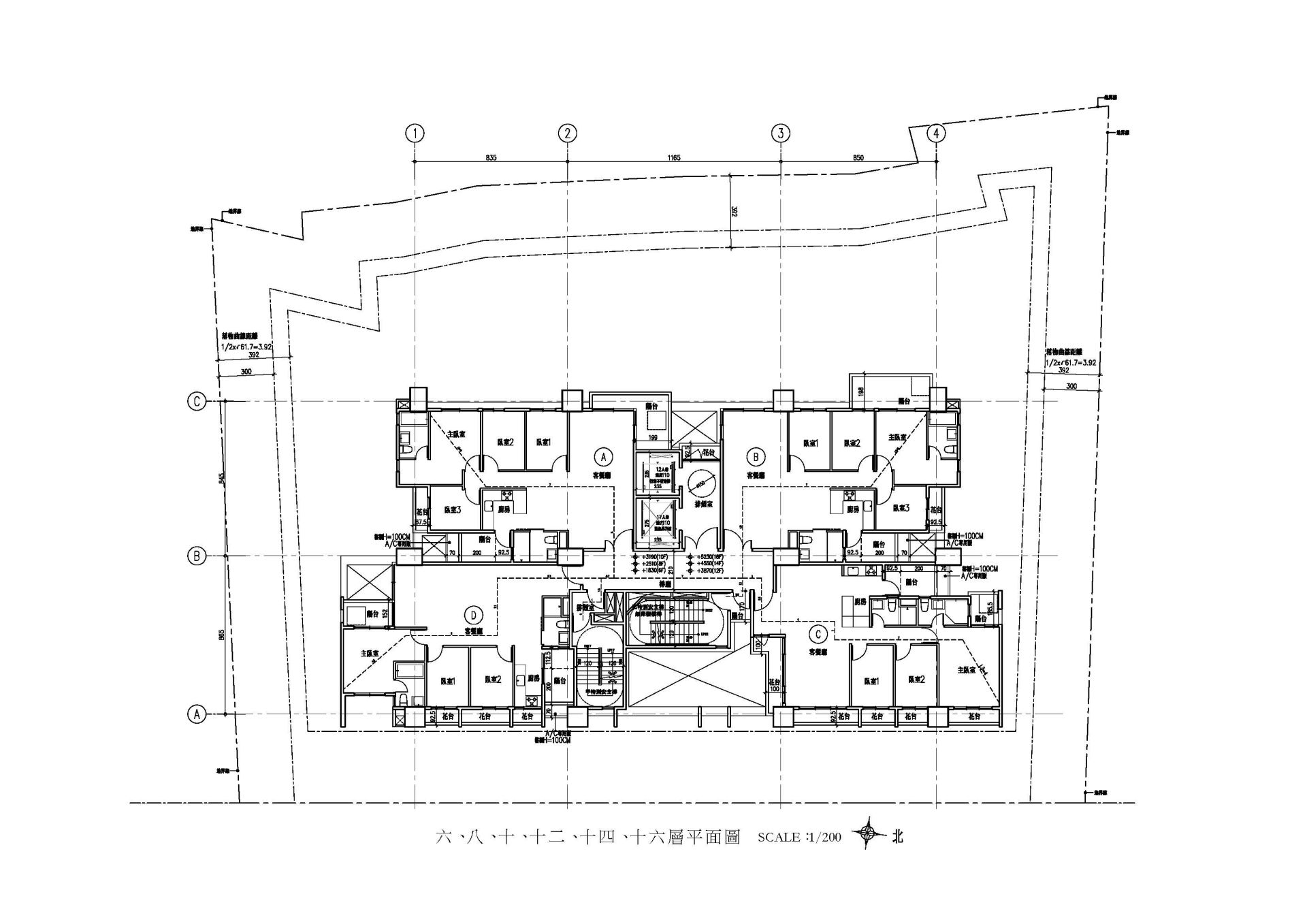
| 單元範圍 | 桃園市桃園區大興段201地號等6筆土地 |
| 使用分區 | 住宅區 |
| 實施方式 | 部分權利變換、部分協議合建 |
| 更新地區 | 自行劃定更新單元 |

.jpg)

| 項目 | 面積(㎡) | 百分比(%) | 備註 |
|---|---|---|---|
| 202、203、205地號 | |||
| 基準容積 | 262.84 | 200.00 | |
| 容積獎勵項目 | |||
| 中央容積獎勵 | |||
| 綠建築獎勵 | 21.027 | 8.00 | 1 |
| 建築物耐震設計 | 1.442 | 2.00 | 2 |
| 時程獎勵 | 18.399 | 7.00 | - |
| 中央獎勵小計 | 40.868 | 17.00 | - |
| 地方容積獎勵 | - | ||
| 都市更新單元內土地及合法建築物所有權人人數依規定計算後,符合獎勵條件者 | 10.513 | 4.00 | - |
| 地方獎勵小計 | 10.513 | 4.00 | - |
| 申請容積獎勵總計 | 55.196 | 21.00 | - |
| 201 、206 、207地號 | |||
| 基準容積 | 3,014.22 | 200.00 | |
| 依都更條例第65條第2項第2款,容積獎勵上限為建築基地1.3倍之原建築容積 | 6,065.896 | 201.24 | - |
| 允建容積 | 6,383.932 | 194.81 | - |
| 實設容積 | 6,383.300 | 194.79 | - |







| 項目 | 金額(億元) | 備註 |
|---|---|---|
| 更新前價值 | - | - |
| 更新後價值 | 12.54 | 1 |
| 共同負擔或更新成本 | - | |
| 重建費用(A) | 6.52 | 2 |
| 公共設費用(B) | - | - |
| 權利變換費用(C) | 0.42 | - |
| 貸款利息(D) | 0.26 | - |
| 稅捐(E) | 0.13 | - |
| 管理費用(F) | 1.78 | 3 |
| 容積移轉費用(G) | - | - |
| 共同負擔或更新成本總計 | 9.07(72.30%) | - |
| 實施者分回 | 9.07(72.30%) | - |
| 地主分回 | 3.47(27.70%) | - |
| 2024-02-01 |
事業計畫核定
|
| 2023-10-25 |
配合審議會會議記錄納入203地號,更改案名為【擬訂桃園市桃園區大興段 201 地號等 6 筆土地都市更新事業計畫案】
|
| 2023-03-29 |
桃園市都市更新及爭議處理審議會
|
| 2022-12-27 |
聽證會
|
| 2022-09-01 |
公辦公聽會
|
| 2022-08-15 | |
| 2022-06-01 |