都更顧問

光復路二段

透過都市更新活化工業區發展

新北市 施工

丹棠受託擔任都更顧問,透過都市更新協助老舊閒置廠房重建,提高工業區發展產能及防災機能,促進地方產業發展。

公共利益

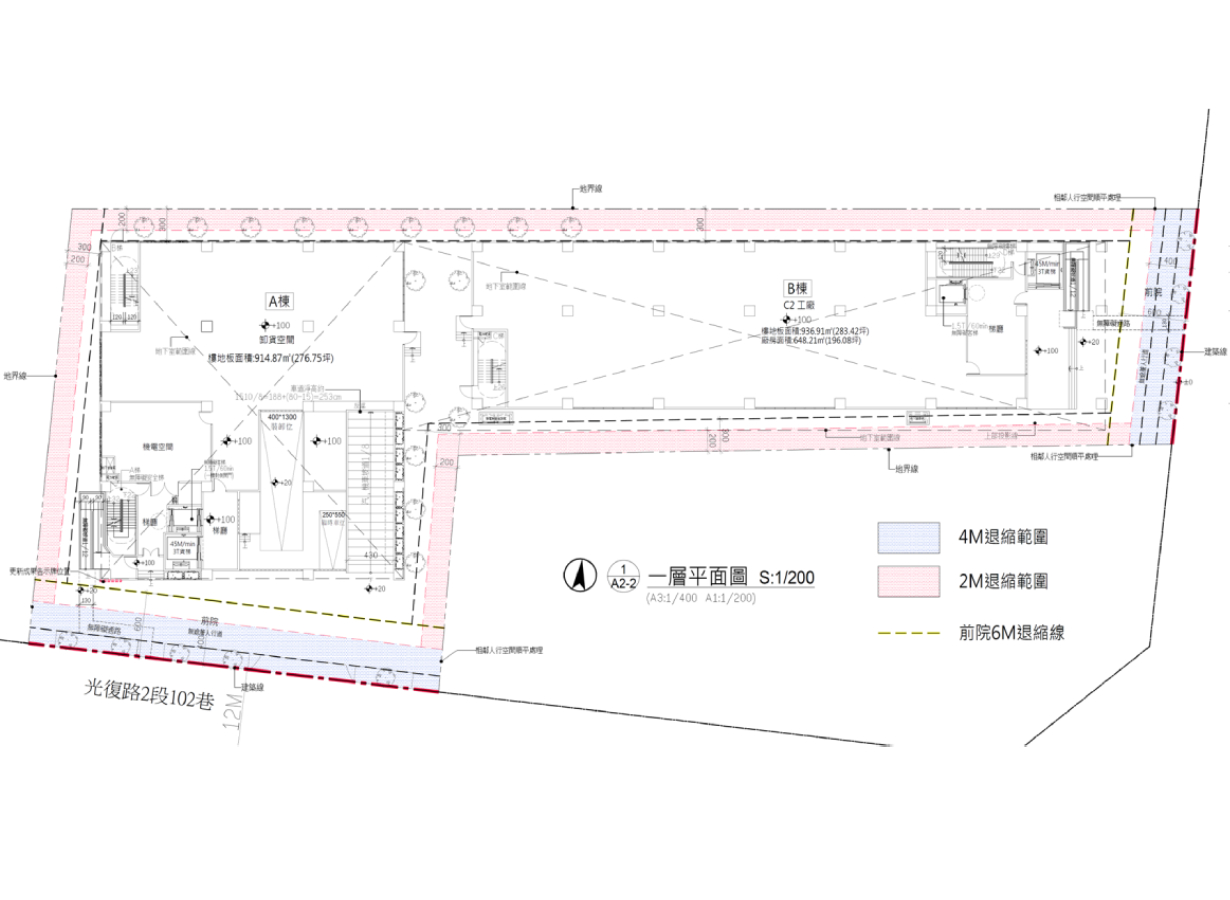
1.本案自基地境界線退縮留設2公尺開放空間,且自建築線退縮留設6公尺無遮簷人行步道及開放空間,皆無償提供予不特定公眾通行使用,並為提高都市更新公益性。
2.捐贈新北市城鄉發展基金,作為本案環境友善方案。
3.提升工廠產值,增加就業人口,帶動經濟效益復甦。

基本資料

項目 內容
實施者 三麟彩色印刷股份有限公司
更新規劃 丹棠開發股份有限公司
建築設計 傅紀宏建築師事務所
鑑價機構 -
面積(㎡) 3,162.62
單元範圍 新北市三重區頂崁段1046地號等7筆土地
使用分區 乙種工業區(再發展區)、乙種工業區
實施方式 協議合建
更新地區 自行劃定更新單元
 
基地範圍圖

更新前

更新單元內共有3棟老舊廠房,建物屋齡皆已超過五十年,土地使用強度低於法定使用強度、建築物耐震設計不符合現行耐震設計規範標準,且現況閒置未能符合現代工業發展機能,亟需透過都市更新方式,強化公共安全及防災性能、改善舊有工業區廠房設備環境、提升工業發展機能,進而復甦地方產業發展,創造各方多贏局面。
 

更新前


更新前


更新前


產權分布圖(全案皆為私地主所有)

容積

項目 面積(㎡) 百分比(%) 備註
基準容積 4,548.76 143.83 -  
    中央容積獎勵  
      #10 綠建築 272.92 6.00 1
      #11 智慧建築 272.92 6.00 2
      #13 建築物耐震設計 454.87 10.00 3
      #14 時程獎勵 318.41 7.00 -
      #15 規模獎勵 241.08 5.30 -
中央獎勵小計 1,560.20 34.30 -
    地方容積獎勵  
      #2 建築基地及建築物規劃設計 454.87 10.00 4
地方獎勵小計 454.87 10.00 -
申請容積獎勵總計 2,015.07 44.30 -
允建容積 6,563.83 207.85 -
實設容積 6,541.96 206.85 -
備註說明
1.本案擬申請銀級綠建築設計。
2.本案擬申請銀級智慧建築設計。
​3.本案擬取得耐震設計標章。
4.本案自基地境界線退縮留設2公尺開放空間;自建築線退縮留設6公尺無遮簷人行道。

規劃


標準層平面圖


地面層平面圖


地下一層平面圖


景觀平面配置圖


正向立面圖


背向立面圖


剖面圖
 

透視圖


夜間照明透視圖

財務

項目 金額(億元) 備註
更新前價值 2.09 -
更新後價值 10.93 1
共同負擔或更新成本  
    工程費用(A) 4.58 2
    申請容積獎勵相關費用(B) 0.08 -
    權利變換費用(C) 0.05 -
    貸款利息(D) 0.08 -
    稅捐(E) 0.04 -
    管理費用(F) 0.85 3
    容積移轉費用(G) 0.00 -
共同負擔或更新成本總計 5.68(51.97%) -
實施者(即地主)分回 5.25(48.03%) 4
備註說明:
1.本案更新後銷售面積為2,968坪,車位數34個,更新後價值約為10.93億元。
2.重建費用平均單價為13.72萬元/坪。
3.人事管理費率5%、風險管理費率12.5%。
4.本案屬自行興建,故實施者即為地主。

過程

2024-08-28
事業計畫核定公告
2024-05-28
審議會第65次會議
2023-12-22
第2次都市更新專案小組會議
2023-07-26
第1次都市更新專案小組會議
2023-06-06
2022-06-13
申請事業計畫報核
2022-04-13