都更顧問

兒福A1

公辦都市更新

臺北市 施工

丹棠受託擔任都更顧問。本案由國家住宅及都市更新中心擔任實施者,丹棠協助順天建設取得最優出資人,後續也將協助辦理都更程序。

公共利益

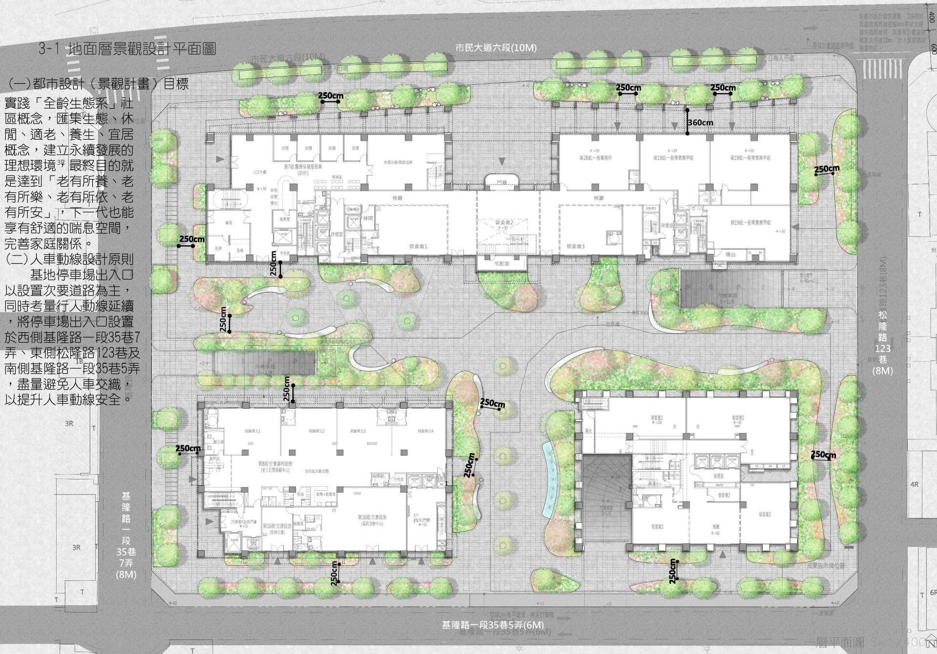
​提供友善高齡者公益設施
除提供在地化醫療、長照服務,打造全齡友善住宅外,與臺北市政府合作建構日照中心、住宿式長照中心、區民活動中心等多元公益設施。

基本資料

項目 內容
實施者 國家住宅及都市更新中心(出資人:順天建設)
更新規劃 丹棠開發股份有限公司
建築設計 陳朝雄建築師事務所
鑑價機構 麗業不動產估價師聯合事務所、環宇不動產估價師聯合事務所、元大不動產估價師事務所
面積(m2) 8,850
單元範圍 臺北市信義區雅祥段一小段6地號等16筆土地
使用分區 第三種住宅區
實施方式 權利變換
更新地區 劃定臺北市都市更新地區暨擬定都市更新計畫案(信義-2兒童福利中心A基地更新地區)
▲更新單元範圍圖

更新前

本基地長期作為中華職業訓練中心使用,然而面對社會變遷,就業市場供需改變,中華職業訓練中心已於民國109年7月停辦,現況建物閒置老舊,具備更新活化契機。
▲更新前建物現況圖
 
▲更新前地形圖
 
▲土地使用分區圖
▲產權分布圖​

容積

項目 面積(㎡) 百分比(%) 備註
基準容積 8,850.00 225  - 
    中央容積獎勵 -
       社會福利設施或其他公益設施 2,975.62 14.94 -
       綠建築獎勵 1,194.75 6.00 1
       候選智慧建築證書獎勵 1,593.00 8.00 2
       建築物耐震設計 1,991.25 10.00 -
       時程獎勵 1,991.25 10.00 3
       規模獎勵 4,460.40 22.40 -
中央獎勵小計 14,206.27 71.34 -
    臺北市都市更新容積獎勵 -
       建築規劃設計(四) 597.38 3.00 4
地方獎勵小計 597.38 3.00 -
申請容積獎勵總計 14,803.65 74.34 5
允建容積 9,240.75 337.50 -
實設容積 9,240.71 337.50 -
備註說明
1.本案採銀級綠建築設計,申請6.00%容積獎勵。
2.本案採黃金級智慧建築設計,申請8.00%容積獎勵。
3.本案位於107年12月10日公告劃定臺北市都市更新地區暨擬定都市更新計畫案(信義-2兒童福利中心 A 基地更新地區)範圍內。
4.本案符合臺北市都市更新及爭議處理審議會歷次會議通案重要審議原則之建築設計類別,申請獎勵容積3.00%。
5.本案以更新獎勵上限(50%)進行申請,更新獎勵實際申請小計為9,956.25(㎡)。
 

規劃

本案更新後規劃設計三幢四棟建築物,融合「銀級綠建築」、「黃金級智慧好宅」及「耐震住宅」,規劃設置全齡出租住宅、日照社福設施、社會住宅等公益設施及都更住宅。全齡出租住宅後續由順天建設專業團隊營運,提供全方位健康服務管理、文化藝文活動及生活支援服務等,建構完善的高齡服務支援網。

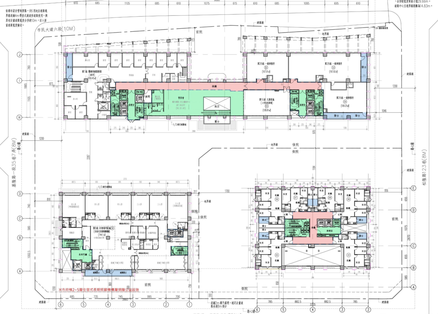
▲一層平面圖

▲二層平面圖

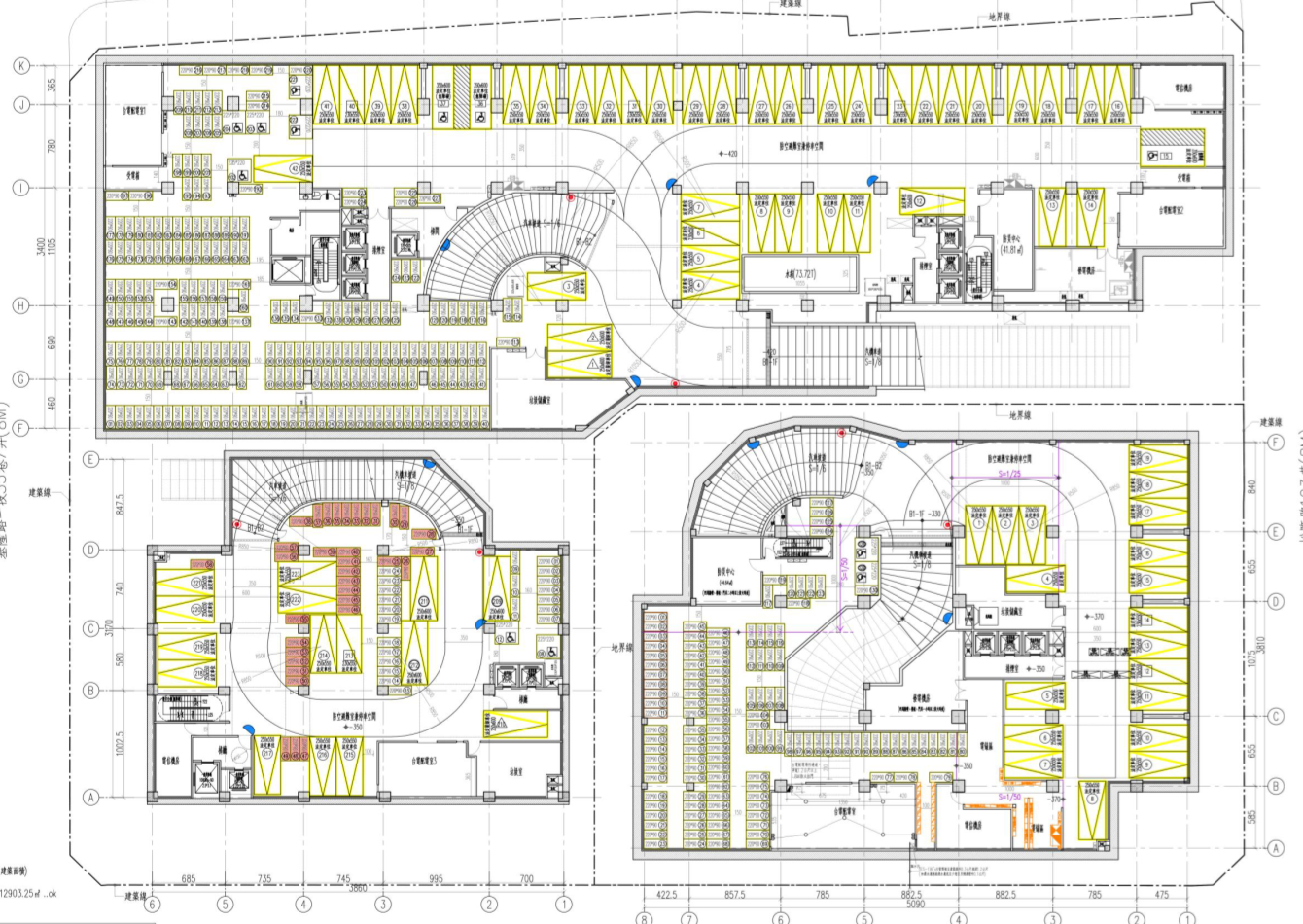
▲地下一層平面圖

▲景觀平面配置圖

▲建物剖面圖

▲建物立面圖
▲​建物透視圖

財務

下表數值僅供參考,實際數值應以核定公告版本為準。
項目 金額(億元) 備註
更新前價值 61.04 -
更新後價值 160.58 1
共同負擔或更新成本 -
    重建費用(A) 42.57 2
    權利變換費用(D) 1.90 -
    貸款利息(G) 1.58 3
    稅捐(H) 1.79 -
    管理費用(I) 9.71 -
共同負擔或更新成本總計 57.55 -
出資人分回 47.44(29.54%) -
地主分回 113.15(70.46%) -
備註說明
1.本案領銜估價為麗業不動產估價師聯合事務所,更新後銷售面積為14,127.1坪,車位數389個,更新後價值約為160.58億元。
2.重建費用平均單價為 22萬元/坪。
3.人事管理費率3.00%、銷售管理費5.40%、風險管理費 11.88%。

過程

2025-10-07
事業計畫及權利變換計畫核定
2024-12-16
審議會
2024-09-11
2023-10-31
權變審查小組會議
2023-10-23
2023-08-31
都市設計審議核定
2023-02-09
專案小組書面審查
2022-12-09
2022-11-17
公開展覽期間
2022-10-14
申請事業及權變計畫報核
2022-08-29

檔案專區

標題 連結
2022年8月29日擬訂臺北市信義區雅祥段一小段6地號等16筆土地都市更新事業計畫及權利變換計畫案自辦公聽會會議紀錄
2022年8月29日擬訂臺北市信義區雅祥段一小段6地號等16筆土地都市更新事業計畫及權利變換計畫案自辦公聽會簡報