麗昇陽榮獲台灣都市更新暨危老重建團隊獎
優質住宅結合公共服務機能
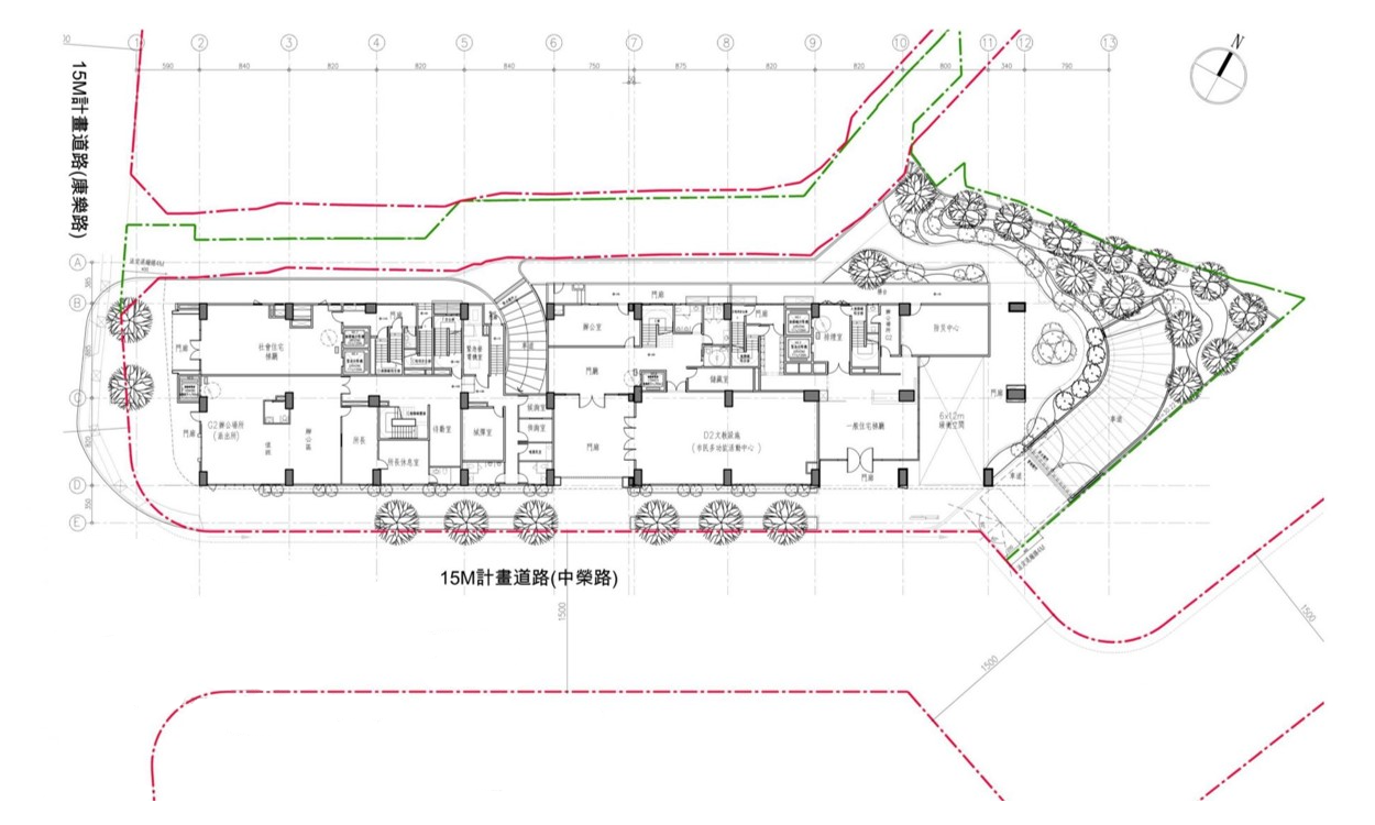
結合住宅與公共服務機能設施,提供「優質住宅」、「社區公益」及「開放空間」,以增進更新後之公益性。
| 項目 | 內容 |
|---|---|
| 實施者 | 昇陽建設企業股份有限公司 |
| 更新規劃 | 丹棠開發股份有限公司 |
| 建築設計 | 三大聯合建設師事務所 |
| 鑑價機構 | 麗業不動產估價師、尚上不動產估價師、正聯不動產估價師 |
| 面積(㎡) | 3,059.00 |
| 單元範圍 | 桃園市中壢區興南段中壢老小段100地號等10筆土地 |
| 使用分區 | 商業區 |
| 實施方式 | 權利變換 |
| 更新地區 | 中壢家商周邊 |







| 項目 | 面積(㎡) | 百分比(%) | 備註 |
|---|---|---|---|
| 基準容積 | 3,059.00 | 380 | - |
| 都市更新容積獎勵 | - | ||
| ΔF2經政府指定額外提供之公益設施 | 1,743.630 | 15.00 | 1 |
| ΔF3更新時程 | 929.936 | 8.00 | - |
| ΔF5更新地區規劃設計 | - | ||
| ΔF5-A符合地方發展特性 | 348.726 | 3.00 | - |
| ΔF5-A-3人行步道 | 669.630 | 5.76 | 2 |
| ΔF5-C規模獎勵 | 608.640 | 5.236 | - |
| 更新獎勵小計 | 4,300.562 | 37.00 | - |
| 申請容積獎勵總計 | 4,300.562 | 37.00 | - |
| 允建容積 | 15,924.76 | 520.59 | - |
| 實設容積 | 15,803.24 | 516.61 | - |









| 項目 | 金額(億元) | 備註 |
|---|---|---|
| 更新前價值 | 7.73 | - |
| 更新後價值 | 26.48 | 1 |
| 共同負擔或更新成本 | - | |
| 工程費用(A) | 10.65 | 2 |
| 權利變換費用(B) | 1,375(萬元) | - |
| 貸款利息(C) | 4,402(萬元) | - |
| 稅捐(D) | 1,180(萬元) | - |
| 管理費用(E) | 2.58 | 3 |
| 共同負擔或更新成本總計 | 13.92(52.57%) | - |
| 實施者分回 | 13.92(52.57%) | - |
| 地主分回 | 12.56(47.43%) | - |
| 2025-02-11 |
完成更新成果備查
|
| 2024-08-26 |
完成囑託登記
|
| 2024-03-27 |
取得使用執照
|
| 2023-07-25 |
變更事業計畫及變更(第二次)權利變換計畫核定實施
|
| 2023-05-18 |
申請變更事業計畫及變更(第二次)權利變換計畫
|
| 2023-01-30 |
變更權利變換計畫核定實施
|
| 2022-10-12 |
申請變更權利變換計畫
|
| 2022-09-06 |
上梁典禮
|
| 2019-12-27 |
開工動土典禮
|
| 2019-12-05 |
取得建造執照
|
| 2019-11-19 |
事業及權變計畫經市府核定公告實施
|
| 2019-06-11 |
審議通過
|
| 2019-05-15 |
第一次都市更新審議會
|
| 2019-03-20 | |
| 2019-01-29 |
府內研商會議
|
| 2018-12-25 | |
| 2018-11-20 |
申請事業及權變計畫報核
|
| 2018-08-31 | |
| 2018-08-15 |
事業及權變計畫草案送件
|
| 2016-02-16 |
更新地區公告
|