益豐中山站東側事業權變計畫核定
退縮留設2米以上人行步道
基地臨北側計畫道路及東側長安西路19巷2弄皆退縮2公尺以上人行步道。
| 項目 | 內容 |
|---|---|
| 實施者 | 益豐建設股份有限公司 |
| 更新規劃 | 丹棠開發股份有限公司 |
| 建築設計 | 大壯聯合建築師事務所 |
| 鑑價機構 | 景瀚不動產估價師、巨秉不動產估價師、永慶不動產估價師 |
| 面積(㎡) | 985.00 |
| 單元範圍 | 臺北市中山區正義段四小段132地號等3筆土地 |
| 使用分區 | 商三、道路用地 |
| 實施方式 | 權利變換 |
| 更新地區 | 捷運中山站東側更新地區 |
基地範圍圖

建物老舊窳陋_區域環境不佳
| 項目 | 面積(㎡) | 百分比(%) | 備註 |
|---|---|---|---|
| 基準容積 | 2,526.00 | 300 | - |
| 都市更新容積獎勵 | - | ||
| ΔF4-2 協助開闢都市計畫道路 | 335.06 | 13.26 | - |
| ΔF5更新地區規劃設計 | - | ||
| ΔF5-1量體及色彩與環境協調 | 202.08 | 8.00 | - |
| ΔF5-3供人行走之地面道路或騎樓 | 165.77 | 6.56 | 1 |
| ΔF5-6建築基地及建築物採綠建築設計 | 151.56 | 6.00 | - |
| ΔF6處理佔有他人土地之舊違章建築戶 | 403.61 | 15.98 | 2 |
| 更新獎勵小計 | 1,258.08 | 49.81 | - |
| 其他獎勵 | - | ||
| 其他獎勵小計 | 0.00 | 0.00 | - |
| 容積移轉 | - | ||
| 申請容積獎勵總計 | 1,258.08 | 49.81 | - |
| 允建容積 | 3,784.20 | 450.00 | - |
| 實設容積 | 3,780.44 | 448.98 | - |



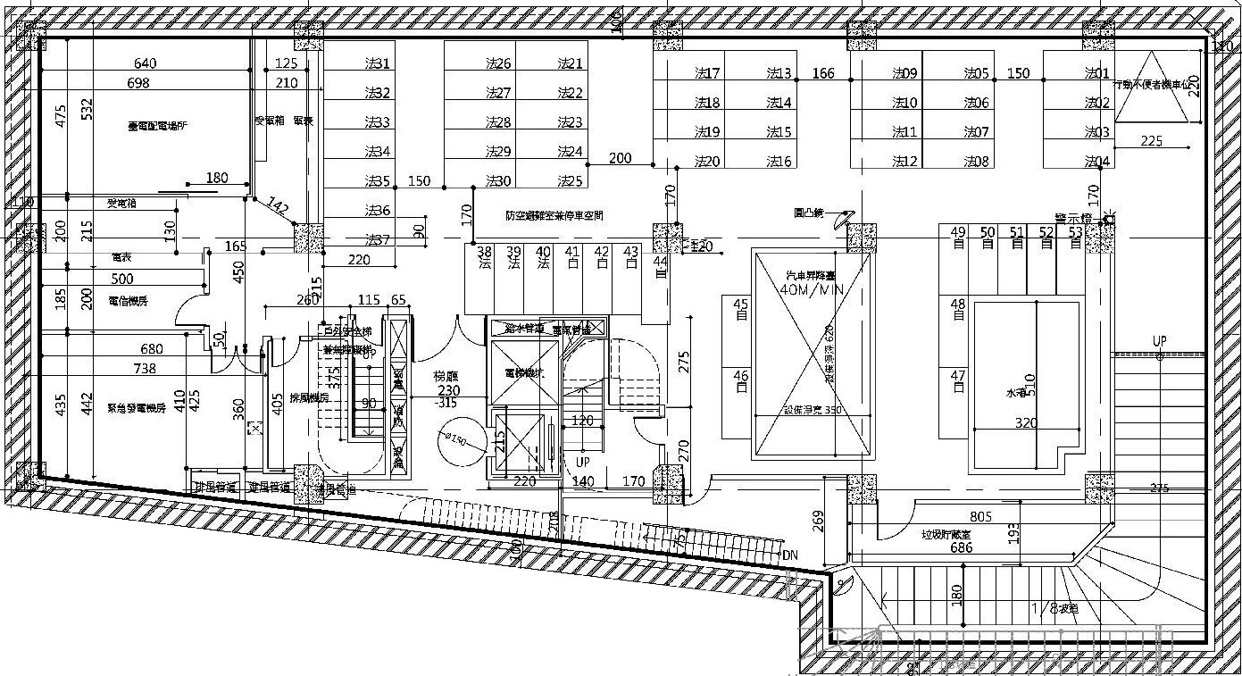
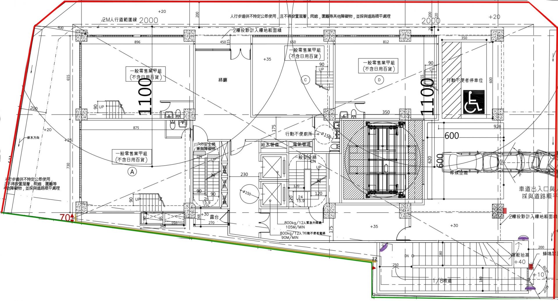
地上一層平面圖
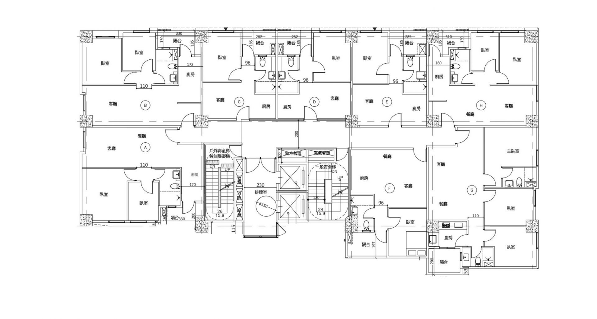
標準層平面圖.jpg)
立面圖
| 項目 | 金額(億元) | 備註 |
|---|---|---|
| 更新前價值 | 8.75 | - |
| 更新後價值 | 17.05 | 1 |
| 共同負擔或更新成本 | - | |
| 重建費用(A) | 2.84 | 2 |
| 公共設費用(B) | 0.006 | - |
| 權利變換費用(C) | 0.20 | - |
| 貸款利息(D) | 0.099 | - |
| 稅捐(E) | 0.15 | - |
| 管理費用(F) | 0.83 | 3 |
| 容積移轉費用(G) | - | - |
| 共同負擔或更新成本總計 | 4.15(25.55%) | - |
| 實施者分回 | 4.15(25.55%) | - |
| 地主分回 | 12.89(74.45%) | - |
| 2021-08-10 |
事業及權利變換計畫核定
|
| 2021-01-25 |
召開第三次審議會(第459次)
|
| 2020-11-06 |
召開第二次審議會(第445次)
|
| 2020-10-07 |
召開第二次聽證會
|
| 2020-06-18 |
第二次幹事及權利變換計畫審查小組會議
|
| 2020-04-29 |
第二次公辦公聽會
|
| 2020-04-08~2020-05-07 |
第二次公開展覽
|
| 2018-08-27 |
召開第一次審議會(第339次)
|
| 2018-05-30 |
召開聽證會
|
| 2017-10-05 |
幹事及權利變換計畫審查小組複審會議
|
| 2017-03-29 |
幹事及權利變換計畫審查小組會議
|
| 2016-12-20 | |
| 2016-11-30~12-29 |
公開展覽
|
| 2016-03-24 |
事業及權利變換計畫報核
|
| 2015-12-23 |
辦理申請分配選屋作業
|
| 2015-12-22 | |
| 2000-06-26 |
公告劃定都市更新地區
|